166 Coffey Street Offered at $1,499,000 - Brooklyn NY 11231.
4 Bedrooms
4.5 Bathrooms
Year Built
3,700 Sq Feet
Brooklyn 15 School District
929530 MLS
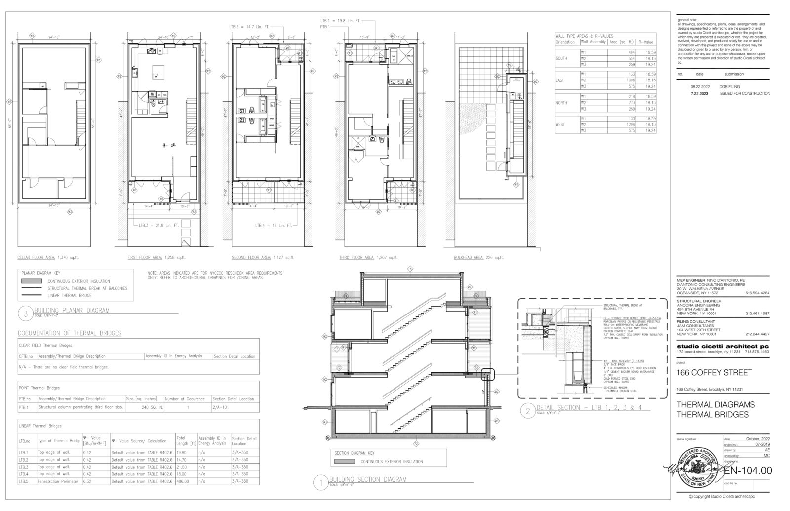
An exceptional shovel-ready opportunity to build on Red Hook’s hottest street. Picturesque, preserved row houses, with views of The Statue of LIberty and NY skyline. Complete plans with NB approval for a 3700 sq. ft. townhouse featuring 4 bedrooms and 4.5 bathrooms are included with this 25 X 100ft lot. The design of this modern luxury townhouse was thoughtfully planned to maximize light and space, and also includes a cellar and rooftop lounge. Exterior facade materials (windows, doors, face brick, wood cladding & trim) are included with the sale. Coffey Street was once acclaimed by The New York Times as among the most beautiful in New York City, celebrated for its tree-lined cobblestone charm, harbor views, and architectural character. Reach out to discover what makes 166 Coffey Street one of Brooklyn’s most inspiring investment opportunities.
Video Tour
SPACE TO UNWIND
INSIDE AND OUT
Floor Plans & Grounds
Take an immersive look at this home.
Map 166 Coffey Street, Brooklyn NY11231.
166 Coffey Street, Brooklyn NY11231.





